Skip to content
乎櫓空間設計有限公司
  • 作品分享
  • 關於我們
  • Toggle website search
Menu Close
  • 作品分享
  • 關於我們
You are currently viewing |三重|L Residence

|三重|L Residence

  • Post published:2024-11-09
  • Post author:Huru Interior Design

|室內坪數| 16.3坪  

|房屋類型| 新成屋

|居住人數| 1人

|房屋格局| 2房

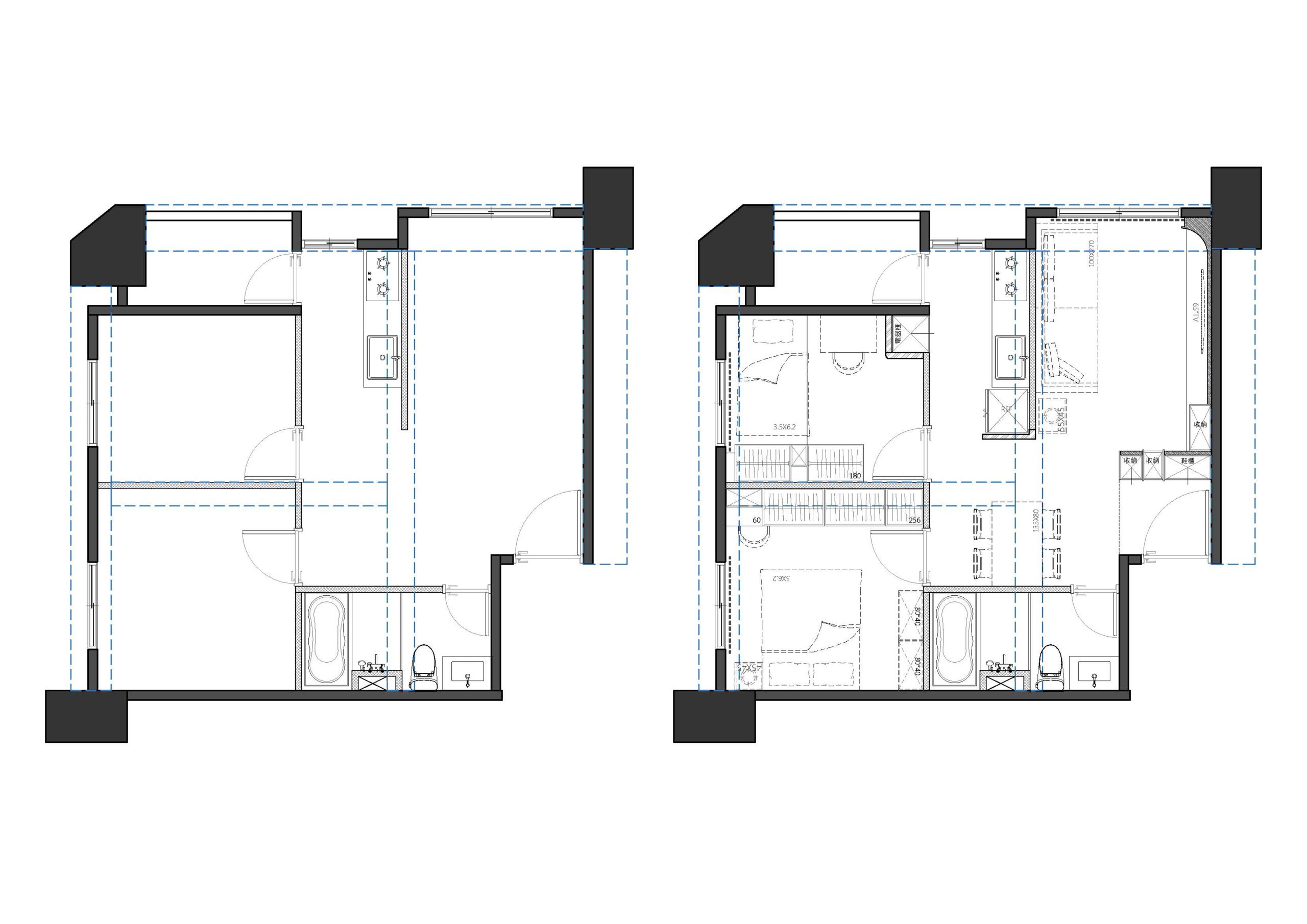
|施工前|

You Might Also Like

Read more about the article |桃園|N Residence

|桃園|N Residence

2024-12-24
Read more about the article |龜山|E Residence

|龜山|E Residence

2024-10-06
Read more about the article |新店|F Residence

|新店|F Residence

2024-10-06

近期文章

  • |桃園|O Residence
  • |桃園|N Residence
  • |三重|M Residence
  • |三重|L Residence
  • |淡水|K Residence

聯絡我們

  • Opens in a new tab
  • Opens in a new tab
  • Opens in a new tab

|乎櫓空間設計有限公司|
|統一編號| 94235281
|信箱| HR.hurudesign@gmail.com
|地址| 新北市新店區中央路105巷14號5樓之2

乎櫓空間設計有限公司