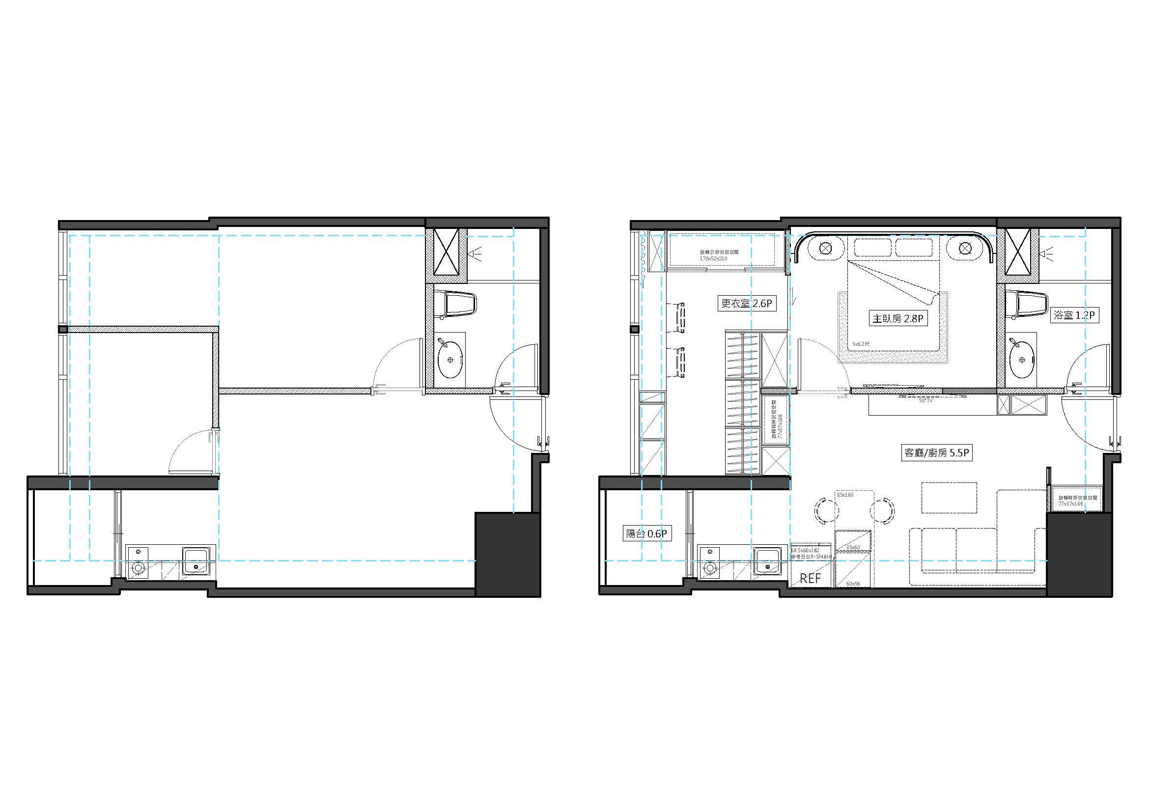
|汐止|A Residence Post published:2024-10-06 Post author:Huru Interior Design |室內坪數| 13坪|房屋類型| 舊屋翻新|居住人數| 2人|房屋格局| 變更1+1房 |施工前| You Might Also Like |新店|F Residence 2024-10-06 |汐止|J Residence 2024-10-06 |竹南|G Residence 2024-10-06