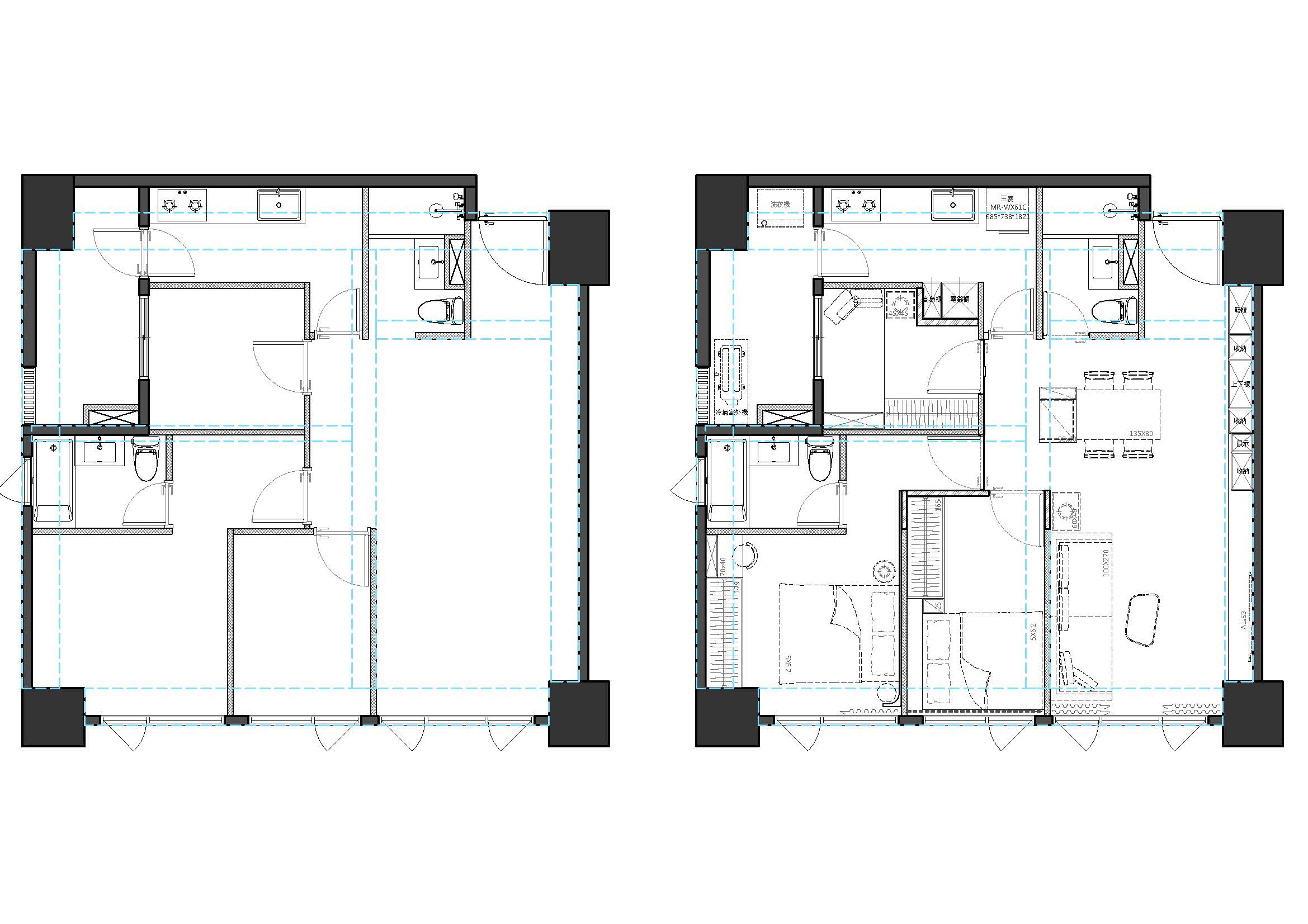
|龜山|C Residence Post published:2024-10-06 Post author:Huru Interior Design |室內坪數| 22坪|房屋類型| 新成屋|居住人數| 2人|房屋格局| 2+1房 |施工前| You Might Also Like |竹南|G Residence 2024-10-06 |汐止|A Residence 2024-10-06 |新莊|D Residence 2024-10-06